Calorguen : Le charme de la campagne aux portes de Dinan
Vous rêvez d’un cadre de vie paisible tout en restant proche de toutes les commodités ? Calorguen, charmant village breton situé à 10 minutes de Dinan, vous offre le meilleur des deux mondes.
– Un environnement naturel préservé : campagne verdoyante, sentiers de randonnée , tranquillité assurée
– Une commune conviviale et à taille humaine, idéale pour les familles, les retraités ou les amoureux de la nature
– Une proximité immédiate avec Dinan, cité médiévale dynamique, riche en histoire, en culture et en commerces
– Accès rapide à la voie rapide Rennes-St Malo, facilitant les déplacements vers les grandes agglomérations
Pour que votre loyer devienne votre propriété !
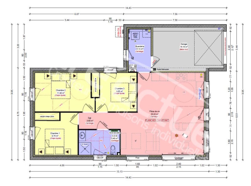
Sur un terrain de 523 m² exposé en plein SUD OUEST, venez découvrir une maison Plain Pied de 78m². Une pièce de vie de plus de 36 m3, une salle d’eau et 3 chambres
Pratique : un garage de 16m2 accolé à la maison et une buanderie de 5 m2
Ce projet de maison contemporaine saura vous séduire.
Permis de construire prêt à déposer. Prix clé en main tous frais inclus (Frais de notaire, bornage, viabilisation et raccordements, assurance dommage ouvrage) à partir de 253 050 € TTC FRAIS D’AGENCE INCLUS. Disponibilité sous réserve de notre partenaire foncier.
Constructeur de maison neuve en Ille-et-Vilaine, Cre’actuel est à vos côtés pour étudier ensemble votre projet. Rencontrons-nous !
Visuels non contractuels.










50















































