Nouveauté !!!
EXCLUSIVITE FONCIERE CREACTUEL….
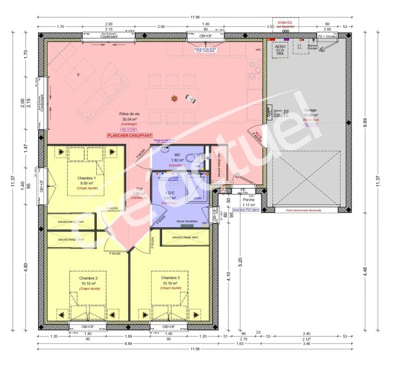
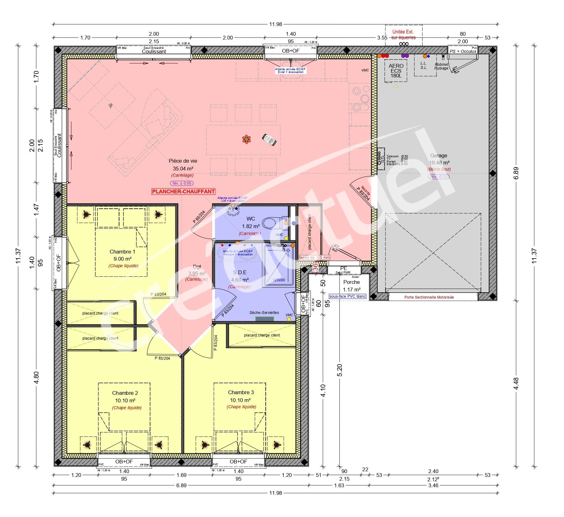
LE LIZIO à 2 pas du bourg, pas une minute à perdre, votre projet devient réalité avec cette maison de 75 m², avec une belle exposition et une pièce de vie lumineuse de 35 M². Cette maison comporte 3 chambres, une salle de bain, des WC et un garage,se situe AU LIZIO dans le Morbihan (56) sur un terrain de 530 m². Laissez-vous séduire !
Permis de construire prêt à déposer. Prix clé en main tous frais inclus (Frais de notaire, bornage, viabilisation et raccordements, assurance dommage ouvrage) à partir de 199000€ TTC FRAIS D’AGENCE INCLUS.
Constructeur de maison neuve DANS LE MORBIHAN, Cre’actuel 56 est à vos côtés pour étudier ensemble votre projet. Rencontrons-nous !
Disponibilité sous réserve de notre partenaire foncier. Visuels non contractuels. L’évolution de la réglementation peut engendrer une modification de surface et de tarif. »
Maison individuelle conforme à la norme RE 2020.










50















































