Exclusivité à saisir !
À la recherche d’une maison neuve en Ille-et-Vilaine (35) ?
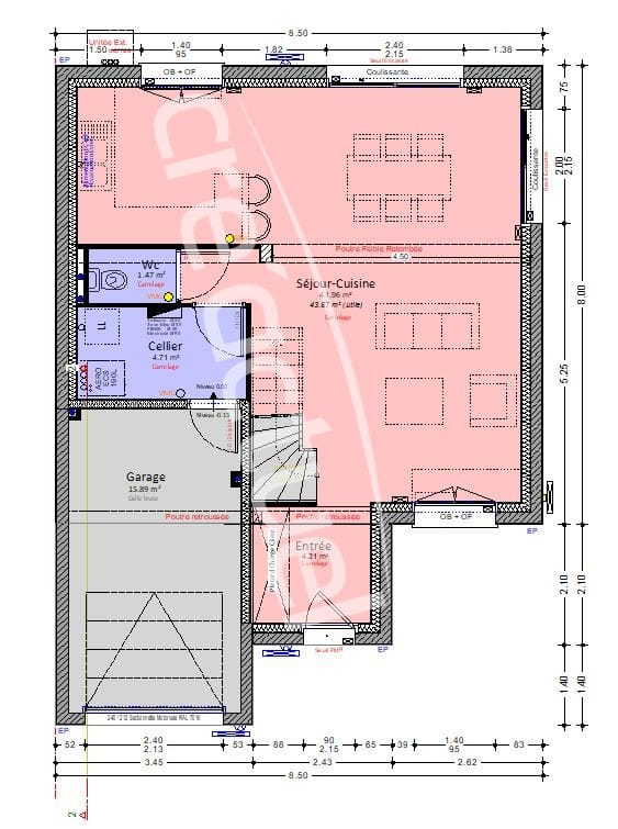
Découvrez cette maison moderne de 96 m² comprenant :
-
Au rez-de-chaussée : une vaste pièce de vie lumineuse de 42 m², un cellier, un garage et un WC.
-
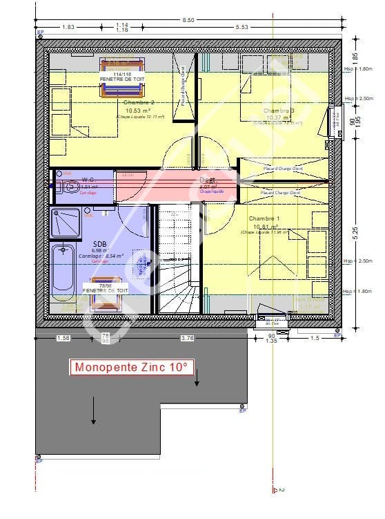
À l’étage : trois belles chambres, une salle d’eau et un WC indépendant.
Idéalement située entre terre et mer, vous serez à moins de 15 minutes des plages, à 15 minutes de Saint-Malo et à 30 minutes de Rennes. Dol-de-Bretagne, commune dynamique et pleine de charme, offre toutes les commodités : commerces, cinéma, écoles, transports en commun et gare TER. Le terrain, exposé sud-ouest, se trouve à deux pas du centre-bourg.
Points forts
- Permis de construire prêt à être déposé
- Terrain viabilisé
- Prix clé en main, tout inclus (frais de notaire, bornage, raccordements, assurance dommage-ouvrage) à partir de 301 550 € TTC, frais d’agence inclus.
Constructeur de maisons neuves en Ille-et-Vilaine, Cre’actuel vous accompagne dans toutes les étapes de votre projet.
Contactez nous dès aujourd’hui et rencontrons-nous pour en discuter !












50

































































